Štedilnik na trda goriva (drva ali premog) KVS Moravia 9101

Štedilniki KVS MORAVIA 9101 so primerni za prostore s prostornino od 75 do 100 m3. Na tem štedilniku kuhalna plošča lahko le železna, ročaji pa bakelitni.

Barve:

bela

Lastnosti štedilnika

  • visok izkoristek
  • preprost ampak diskretn izgled
  • dve rešetki, spodnja vrtljiva za lažje čiščenje
  • kurišče je obloženo z izredno kvalitetno šamotno opeko
  • dostopen regulator vleka
  • dimni priključek zadaj na sredini, levo zadaj, desno zadaj, na plošči na sredini
  • železna plošča
  • možnost izolacijskega elementa širine 100mm v beli barvi med štedilnikom in kuhinjskimi elementi (stran 32 v katalogu)

Karakteristike štedilnika

  • minimalna prostornina ogrevanja: 75-100 m3
  • kurišče: šamotna opeka
  • ročaji: bakelit
  • kuhalna plošča: železna

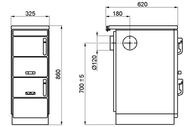
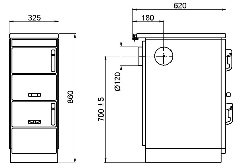
Tehnični podatki štedilnika

toplotna moč6-8 kW
min. vlek dimnika10 Pa
dimenzije štedilnikavišina: 860 mm
širina: 325 mm
globina: 620 mm
površina plošče0,12 m2
premer dimnika120 mm
višina dimnega priključka od tal700 ± 5 mm
gorivo (priporočeno)drva ali lesni briketi
porabapremog: 1,2 kg/h
drva: 2,0 kg/h
izkoristekmin. 70%
teža100 kg
Izdelava štedilnikov na drva

Kvalitetna izdelava

Vsi štedilniki na trda goriva Moravia so izdelani iz kvalitetne šamotne opeke, zunanje površine pa je emajlirano, kar zagotavlja enostavno vzdrževanje in dolgo življenjsko dobo štedilnika.

Barva

Štedilnik v barvi

Štedilnike Moravia lahko dobite v različnih barvah: od bele, rjave, rdeče, zelene, modre ali črne.

Garancija

2 leti garancije

Ker verjamemo v naše štedilnike, vam ne ponujamo samo 1 leto, ampak kar 2 leti garancije.

Brezplačna dostava

Brezplačna dostava

Vaš novi štedilnik na drva vam BREZPLAČNO dostavimo po celi Sloveniji.

Možnost plačila s plačilnimi in kreditnimi karticami

Kreditne in plačilne kartice

Svoj novi štedilnik na trda goriva lahko plačate s kreditnimi in plačilnimi karticami Mastercard, Visa, BA, Karanta in Maestro kot fizična ali pravna oseba.